A Clear Overview

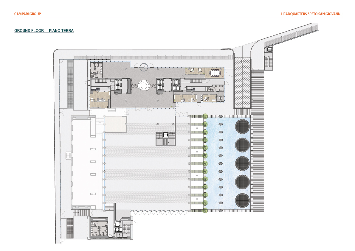
Le planimetrie illustrano la distribuzione funzionale degli spazi e la relazione tra i diversi edifici.
La Torre, il Ponte, la Lobby, la Villa e le funzioni accessorie si integrano in un sistema fluido pensato per garantire efficienza e continuità d’uso.

Planimetrie
Ground floor First floor Second floor Third floor Fourth floor Fifth floor Sixth floor Seventh floor Eighth floor

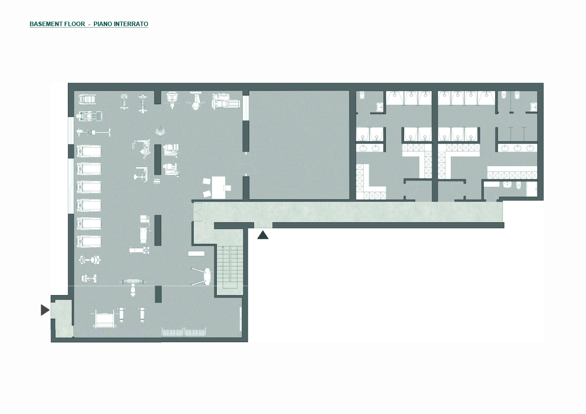
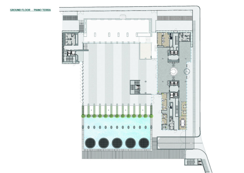
Ground floor

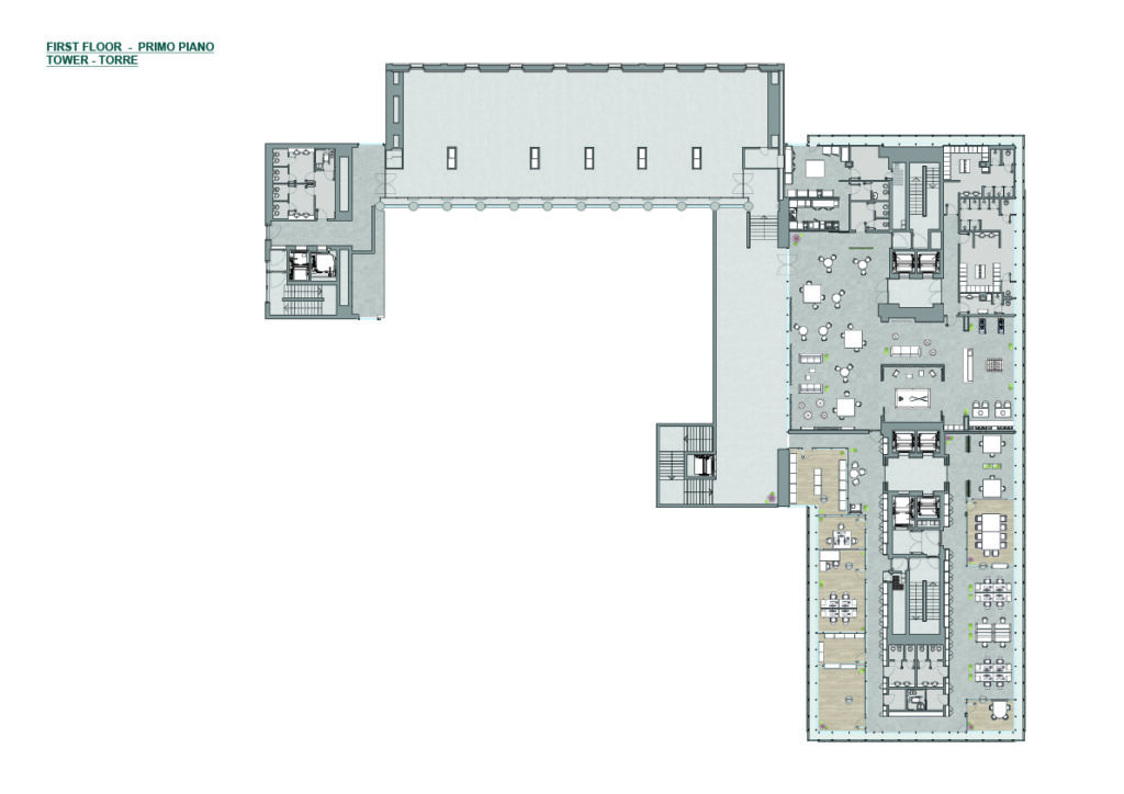
First floor

Second floor

Third floor

Fourth floor

Fifth floor

Sixth floor

Seventh floor

Eighth floor

UFFICI
Piano Uffici Lobby Museo
8 Torre1.228
7 Torre1.228
6 Ponte164
6 Torre814
5 Ponte1.110
5 Torre684
4 Ponte1.110
4 Torre684
3 Ponte191
3 Torre747
2 Torre940
1 Torre1.151737
0 Torre1.096636
-1158
-233
TOTALE 10.242 1.096 1.373
VILLA
Piano Villa
2 616
1 251
0 835
TOTALE 1.702
ADDITIONAL OFFICE SPACE
Piano Sala meeting Palestra
0 1.060
-1 210
TOTALE 1.060 210
The Villa Additional Office Space

The Villa

Additional Office Space

Indirizzo

Piazza Armando Diaz, 7 20123 Milano

Telefono

+39 02 80 29 21

Email

office@dils.com

Sito

dils.com

Indirizzo

Piazza Lina Bo Bardi 3, 20124 Milano

Telefono

+39 02 32 11 53

Email

milano.advisory@realestate.bnpparibas

Sito

realestate.bnpparibas.it